Low Temperature Thermal Decomposition Disposer
低温熱分解処理装置
LTTDⅡ-150
従来品と比較して、
マグネットの強化と排熱の一部利用で
1日当たりの処理能力アップ。
環境にやさしいゴミ処理装置。
01
処理機内には常時微量の空気が送られますが、空気吸入口に取り付けた磁石により磁気性空気となり低酸素雰囲気下での低温熱分解反応を促進します。最初に炉心を作成すれば後は供給空気の調節をし処理物を投入するだけで処理は連続して進みます。
02
・処理物を投入する時に内蓋と外蓋の間に溜まっている排煙の自動排出機能追加
・排煙対策をシャワーリング、フィルター、セラミックヒータによる3段回の処理で強化
・シャワーリングの水の循環利用により使用水の減量化(ON/OFF可)
・排水のPH調整機能(ON/OFF可)
・ゴミ箱の上昇、投入、下降、投入口の蓋開けの自動・手動切替可能
・排煙の主要成分のモニタリング及び記録(ON/OFF可)
03
生ゴミ、プラスチック、一般廃棄物などの有機系廃棄物を分別する必要がなく、一緒に投入することができます。消煙・消臭装置が設置されておりますので処理中に黒煙や異臭はほとんど発生しません。
04
有機系廃棄物は、磁気性低酸素雰囲気下で低温(200~300℃)熱分解を受け、最終的にはセラミック灰(重量で投入物の 1/300以下)として取り出されます。セラミック灰は建築資材に混合したり、植物の生育促進剤として使用できます。また、熱分解の過程で木酢液が出てきますが、これは害虫忌避剤として使用できます。
05
排出ガス中のダイオキシン類濃度、窒素酸化物濃度は標準的な使用法では環境基準値以下に抑えられ環境保全に役立ちます。この装置は、焼却炉のような燃焼方式ではないため自治体への設置許可の届出は原則必要ありません。
| 項目 | 内容 | 備考 |
|---|---|---|
| 容量 | 2.0m3 | |
| 素材 | 鉄およびステンレス | |
| 外観形状 | 箱型 | 二重構造 |
| 重量 | 約5000kg | |
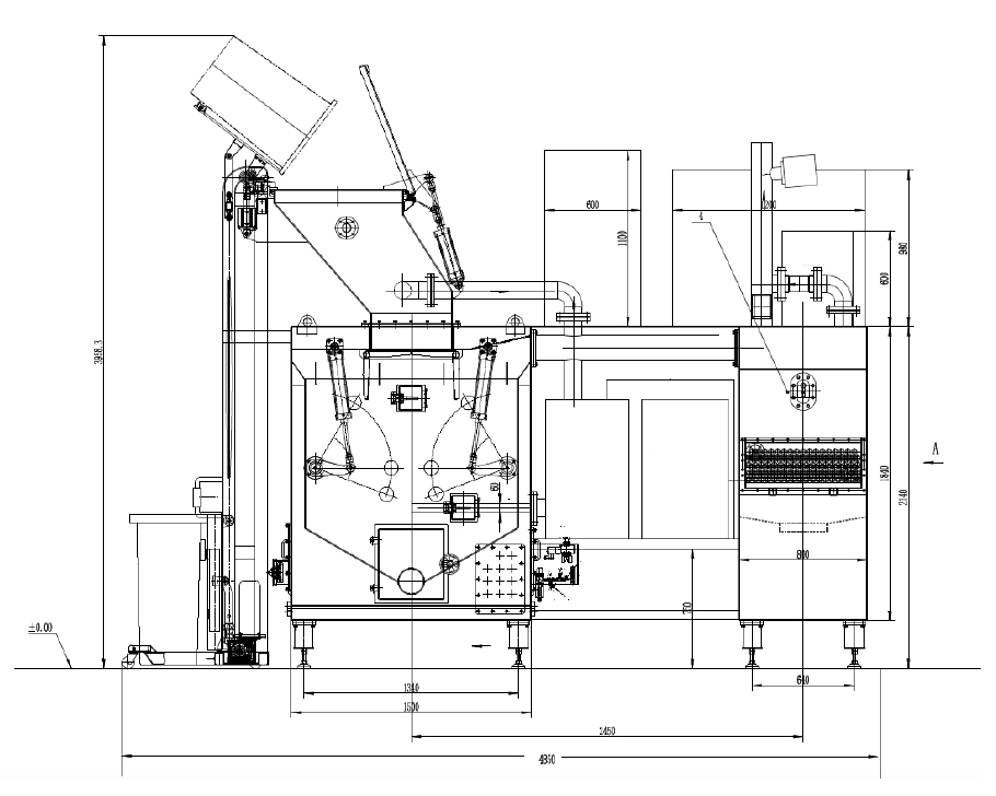
| 寸法 | 4850(L)×2300(D)×3200(H) | |
| 色 | ホワイト(変更可) | |
| 磁気ノズル | マグネット | 従来の装置より強化 |
| 処理量 | 1~2m3/日で処理 | 処理物、含水率により異なる |
| 処理物 | 有機物全般 | |
| 処理方法 | 磁気熱分解 | 一部排熱利用 |
| 排気方法 | 脱煙脱臭装置標準装備 | |
| 残渣量 | 1/300〜1/500 | |
| 残渣処理 | 産業廃棄物として処理 | 土壌改良、固化材で再利用可 |
| 装置内酸素濃度 | 燃焼可能な酸素濃度(12.5%)以下 | |
| 設置場所 | 屋内 | |
| 消費電力 | 5kwh | 各機能使用時 |
| 使用水量 | 0.5t/日 | 脱煙の為使用、循環利用 |
| 排水 | 浄水後、0.2t/日排水 | PH調整機能有り |
| 排煙処理方法 | シャワーリング、フィルター | |
| 排煙の記録 | 主要成分を常時モニタリング | 情報を記録 |
| 投入方式 | ゴミ箱の投入口までは自動・手動 | 自動・手動切替可 |
| 処理物投入回数 | 標準的は2回/日 |
スクロール→
各種商業施設、工場、畜産業など
| 処理できる物 | 処理できない物 |
|---|---|
|
基本的に有機物は可能です。 生活ゴミ、紙おむつ、ゴム製品、木材、プラスチック等の石油化学製品、動植物性残渣、農業廃棄物、工業廃棄物、漁網、牛豚鳥の糞など。 |
無機物など。 金属類、ガラス類、陶磁器類、土砂、液体など。 含水率が高い物。 |
スクロール→
LTTDⅡ-150
| サイズ(mm) | 重量(Kg) | 容量(m3) | 処理量(m3/日) |
|---|---|---|---|
| 4850(L)×2300(D)×3200(H) | 5,000 | 2.0 | 1~2 |
スクロール→
寸法のLはゴミ箱を下ろした位置で作業用階段を設置すれば、+2000mm程度延びます。
又、Hは処理物投入口を閉じた時の寸法です。処理物を投入する時のトップ位置は3960mmです。
処理量は投入物の種類や含水率で異なります。
・水が滴るものは乾燥させる。
・処理できるものは有機物です。
・長いものは破砕する。
・処理時間は処理物によって変わります。
・性能を維持するには定期点検をお勧めします。
※コンテナーハウスと太陽光パネル、蓄電池はオプションです。
装置の専用建屋と電力を解決!!
▼ 20FTコンテナー ハウス、太陽光パネル10枚+蓄電池



スクロール→
▼ 40FTコンテナー ハウス+太陽光パネル20枚+蓄電池
フル機能24H使用の場合は、こちらが必要です。



スクロール→
この製品に関するお問い合わせは
【メーカー】
ジャパン テクノロジーリサーチ株式会社 (JTR)
【テクニカル支援・保守】
株式会社ジェイ・シー・ダブル (JCW)
【販売店・お問い合わせ】
株式会社アイライフ
お電話でのお問い合わせはこちら
0120-945-316
フォームからのお問い合わせはこちら
資料請求・お問い合わせ©株式会社アイライフ ALL RIGHTS RESERVED.
Low Temperature Thermal Decomposition Disposer
この製品に関するお問い合わせは
0120-945-316